КОМПЛЕКСЕ
В распоряжении жителей ЖК «Солнечный Берег»
развитая и удобная для жизни инфраструктура: ⠀
Бульвар и набережная реки Ушаковка (предусмотрена проектом благоустройства);
Детский сад №127;
Средняя общеобразовательная школа №23;
Поликлиника №12;
Супермаркеты Слата, SPAR, Удача;
Фитнес-клуб и SPA-центр «ION»⠀
Остановки общественного транспорта: автобус, троллейбус.
Комфорт-класс
Площадь проекта: 4,2 тыс. м2
Количество блок-секций: 7 (6 сдано)
Количество этажей: 3 этажа
Высота потолков: 2,85 м
Квартиры площадью 20-100 м2
Материалы: монолитный каркас, кирпич
Комплекс состоит из 7-и трехэтажных блок-секций (6 сдано), парковки для автомобилей, детских игровых площадок и зеленых насаждений.
СНОВНЫЕ ПРЕИМУЩЕСТВА
✔ Малоэтажная застройка:
приемлемые цены и высокая скорость строительства;
наличие свободных парковочных мест у дома.
О
О
✔ Экономичность эксплуатации и снижение издержек на коммунальное обслуживание.

✔ Современные строительные материалы и технологии строительства (экологичность, надежность, сейсмоустойчивость, долговечность, технологичность).

✔ Удобная транспортная развязка (до остановки общественного транспорта - менее 500 м).

✔ Квартиры индивидуальной планировки, площадью от 20 до 100 м2.

✔ Возможность приобретения квартиры по ипотеке, в рассрочку, TRADE-IN.
УНИКАЛЬНАЯ СЕЙСМОСТОЙКОСТЬ – 9 БАЛЛОВ!
Учтены сейсмические особенности региона — благодаря примененным технологиям комплекс соответствует всем нормативам сейсмической безопасности высотного строительства, при этом имеет всего 3 этажа.
Фундамент
Создана «подушка» из галичного ПГС, благодаря которой здание скользит или «плавает» во время землетрясения и не разламывается по тем линиям, где создается наибольшее напряжение.
Антисейсмические швы
Разрезают здание на самостоятельные, независимые друг от друга устойчивые отсеки.
Армирование
Газобетонные перегородки армируются по всей длине.
ГЕНЕРАЛЬНЫЙ ПЛАН
ЖК «СОЛНЕЧНЫЙ БЕРЕГ»
ЖИЛОЙ ДОМ

ДОРОГИ

ТРОТУАР

ДЕТСКАЯ ПЛОЩАДКА

ГАЗОНЫ
Количество блок-секций: 7 (6 сдано)
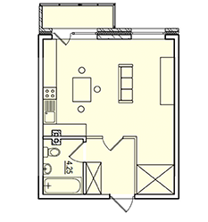
ИНДИВИДУАЛЬНАЯ ПЛАНИРОВКА
Свобода действий для будущего собственника жилья — одно из основных достоинств квартир в ЖК Солнечный берег. Свободная планировка — это прекрасная возможность не приобретать квартиру с определенным количеством комнат, а самостоятельно решить, сколько именно комнат появится на данной площади. Например, под детскую комнату можно выделить желаемое количество квадратов, а не пытаться разместить в маленькой комнатке все необходимое для ребенка. Площади квартир также позволяют запланировать наличие кабинета или комнаты для гостей.
ВАРИАНТЫ РАЗМЕЩЕНИЯ
КВАРТИРЫ-СТУДИИ
от 1,46 млн. руб.
1-К КВАРТИРЫ
от 2 млн. руб.
2-К КВАРТИРЫ
от 3,3 млн. руб.
3-К или 4-К КВАРТИРЫ
от 4,5 млн. руб.
ФОТОГРАФИИ ЖИЛОГО КОМПЛЕКСА
О ЗАСТРОЙЩИКЕ
Строительство жилого комплекса выполняет компания «Управление Регионального Строительства» (ООО «УРС»).
Реквизиты:

ОГРН: 1163850076499
ИНН/КПП: 3849059553/384901001
Р/с: 40702810918350010659
Байкальский банк ПАО Сбербанк г.Иркутск
БИК: 042520607
К/с: 30101810900000000607
Контактная информация:

Адрес: 664009, г.Иркутск, ул. Култукская, 99/11
Телефон: ‎(3952) 579-999
E-mail: info@sbirk.ru
Режим работы:
Понедельник - пятница: с 09:00 до 18:00
Генеральный директор ООО «УРС» Аркадий Борисович Астрахан
ОКУМЕНТЫ
Д
Адрес Жилого Комлекса «Солнечный берег»
+7 (3952) 579 999
www.sbirk.ru
info@sbirk.ru
Иркутск, ул.Култукская, 99/19
Адрес отдела продаж
+7 (3952) 579 999
www.sbirk.ru
info@sbirk.ru
ул. Советская, 124 Б, офис 2
(вход со стороны ул.Красноказачья)
Made on
Tilda